Wanaka 360 Lake and mountain views

114 Anderson Road, Wānaka 9305

For Sale

Price By Negotiation

Make Offer Book Viewing Contact Seller Add to Favs

Listing Reference #4957 . Listed: 20 Jan 2026

Property Specs

  • Bedrooms5
  • Bathrooms3
  • Living Rooms1
  • Dining Rooms1
  • Garaging2 cars (double)
  • Off-street car parks3
  • Floor Area265 m2
  • Land Area558 m2
  • MaterialWeatherboard
  • Levels2
  • TypeHouse
  • TitleFreehold
  • Year Built2026

Phone Number

You need to be logged in to contact the property owner.

If you already have an account please login here. Otherwise click here to register.

Seller's Description

https://www.trademe.co.nz/a/property/residential/sale/otago/wanaka/wanaka/listing/5863483830

Contact Darin 021605801

Brand new build coming to completion early June ready for ski season.

This house features exquisite views of Lake wanaka and surrounds, seldom will you find somewhere that has 360 views of this nature, wake up and watch sun rise over Mt iron and Barker, high noon over Mt Gold and sticky forest, as it tracks west setting over Lake wanaka, Glendhu bay, and Mou Tapu island. Face south for the aurora up the Cardona valley.

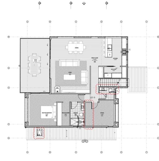
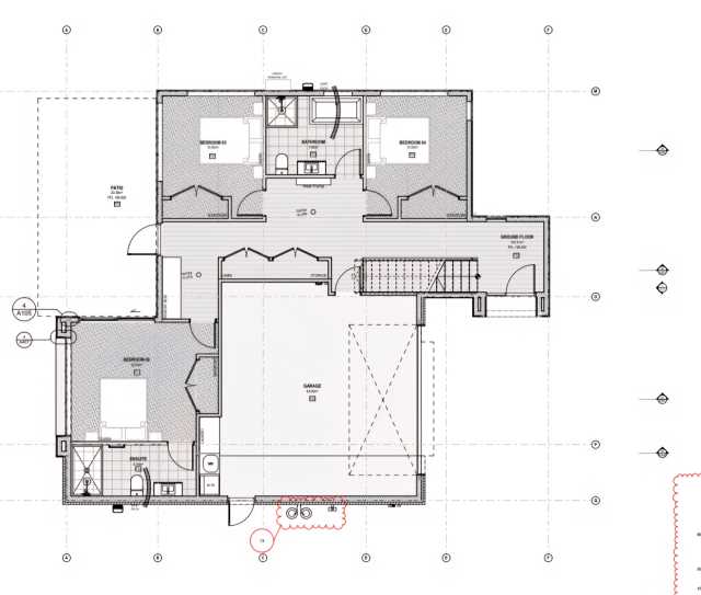
House is modern layout featuring generous sized bedrooms and living. Two car insulated garage, and plenty of storage space.

Situated close to town, walking distance to lake Wanaka, schools and golf course or a sneaky drink at B-Effect just down the road.

Plans have changed, we were building this house for our family and a lot of thought had gone into Layout and functionality.

Kitchen/Living - open plan with stone bench tops and separate scullery, fisher&paykel appliances, built in bar nook, inside outside flow with large elevated deck. Lounge is cozy with fire for those cooler winter evenings. separate WC toilet for easy access down hall.

Master bed- generous size with walk-in robe and ensuite, deck access and views of lake and ruby island.

Office/study/media/5th bed room- multi purpose room upstairs, large enough for queen bed or couch, has built in desk office/wardrobe unit. great view of Mt Iron

bed 3/4- double sized for queen beds, built in wardrobes

Guest bed 2 - generous sized with large ensuite with lower deck access and separate entry if desired, great for air bnb or housing guests with privacy, lake view

Main floors are engineered oak floors, with carpet to bedrooms

bathrooms are all tiled floors and walls with glass shower doors

heat pumps to all areas

Solar ready, wires run to roof, Panel and battery quote and ready to be installed if desired, please enquire.

Please get in touch to view.

Special Features

Sea views. Deck. Patio. Enclosed Garden.

Other Details

Services
  • Water supplyCouncil
  • Septic systemCouncil
Property Condition
  • InteriorN/A
  • ExteriorN/A
  • GardenLandscaped
LINZ Info
  • Title number: 830095
  • Legal description: Fee Simple, 1/1, Lot 2 Deposited Plan 522747, 558 m2
Chattels

Included in the sale: Fixed Floor coverings. Window coverings. Light fittings. Stove. Hob/Cooktop. Oven. Dishwasher. Heat pump. Range hood. Heated towel rails. TV aerial. Garage door openers. Shelving. Wallheaters. Refrigerator. Clothesline. LED Light Bulbs.

Downloads for 114 Anderson Road, Wānaka

plans


You might also like

Search Again

Enter a town, city, region or postcode into the search box and we'll show properties in and around that area.