Home & Income Opportunity in Hanley’s Farm

39 Jack Hanley Drive, Jacks Point, Queenstown 9371

For Sale

Enquiries Over $1,780,000

Make Offer Book Viewing Contact Seller Add to Favs

Listing Reference #5200 . Listed: 11 Apr 2026

Property Specs

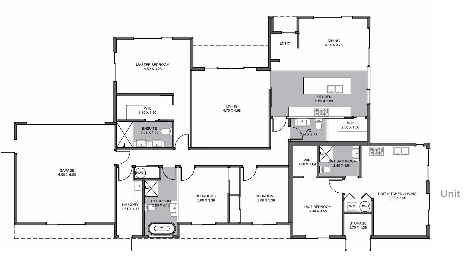
  • Bedrooms4
  • Bathrooms3
  • Living Rooms2
  • Dining Rooms1
  • Garaging2 cars (double)
  • Off-street car parks5
  • Floor Area237 m2
  • Land Area520 m2
  • MaterialCedar, Stria & Plaster
  • Levels1
  • TypeHouse
  • TitleFreehold
  • Year Built2023

Phone Number

You need to be logged in to contact the property owner.

If you already have an account please login here. Otherwise click here to register.

Seller's Description

A modern 3-bedroom, 2.5 bathroom home paired with a fully self-contained 1-bedroom unit—offering flexible living and strong income potential in one of Queenstown’s fastest-growing communities.

Set on a 520sqm section, the property comprises a spacious 190sqm three-bedroom main residence alongside a fully self-contained 47sqm one-bedroom unit which has been cleverly positioned to maintain privacy for both owner and tenant.

Built in 2023 as a show home by Trident Homes Queenstown, you will enjoy the benefit of high-spec upgrades, all meticulously maintained to a 'like-new' standard.

Minutes to the Preschool & Primary School, Remarkables ski field, and steps from the local café and playground - designed for easy, low-maintenance living.

- Home + income opportunity
- Ducted heating with zone control + smart home system
- Sunny north-facing outdoor living for the Main House and Unit
- Attic storage in Main House & Unit
- Up to 5 off-street parks
- Fully established, low-maintenance landscaping

You can take comfort that this 3-year young home has the remainder of a 10 year Master-Build Guarantee transferable to the new owner.

Whether you’re investing, nesting, or both—this is a smart move in a prime location. All of this is set in the heart of the family-friendly Hanley's Farm community.

Special Features

Deck. Patio.

Locality / Area

Minutes to the Preschool & Primary School, Remarkables ski field, and steps from the local café and playground..

Other Details

Services
  • Water supplyCouncil
  • Septic systemCouncil
Property Condition
  • GardenMature garden
LINZ Info
  • Title number: 927290
  • Legal description: Fee Simple, 1/1, Lot 4001 Deposited Plan 545444, 520 m2
Chattels

Included in the sale: Fixed Floor coverings. Window coverings. Light fittings. Hob/Cooktop. Oven. Dishwasher. Waste disposal unit. Heat pump. Range hood. Heated towel rails. Garage door openers. Shelving. LED Light Bulbs. Blinds. Curtains.

Tenancy Info

The property is currently tenanted but will not be tenanted post sale.

Downloads for 39 Jack Hanley Drive, Jacks Point

Valuation report: Residential Valuat... Show-home---1.png Rental Appraisal

You might also like

Stylish Living in Papkura
Papakura
Cadiz Place
PRIVATE SALE - COASTAL OASIS
Whangārei
One Tree Point Road

Search Again

Enter a town, city, region or postcode into the search box and we'll show properties in and around that area.